

Bergamo, in posizione centralissima, a due passi da Porta nuova e 5 minuti dalla stazione, luminoso bilocale al terzo piano in condominio signorile servito da ascensore e servizio di portineria
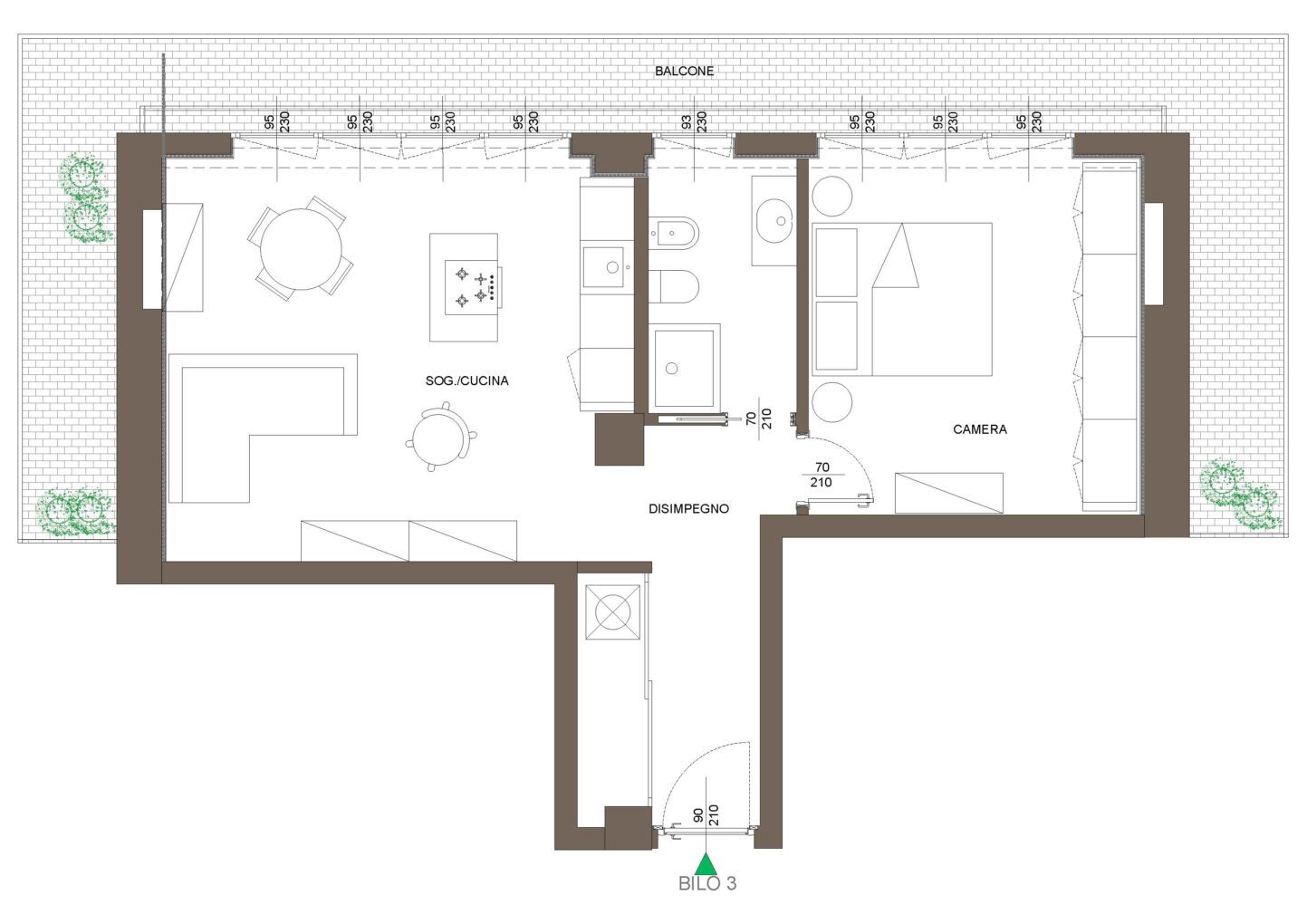
L’appartamento sarà composto da ingresso con abbassamenti estetici dotato di luci a led, corridoio con ripostiglio dotato di attacco per lavatrice/asciugatrice, soggiorno avente cucina con isola, ampia camera matrimoniale e bagno finestrato con doccia, sanitari filo muro e finiture di qualità. Tutti gli ambienti affacciano su un grande balcone.
L’appartamento è stato progettato con cura per ottimizzare gli spazi e ogni dettaglio è studiato per offrire la massima personalizzazione: è possibile adattare il progetto e le finiture secondo i propri gusti, creando così un’abitazione su misura.
Grazie al suo elevato potenziale di redditività, questo immobile rappresenta un’ottima opportunità sia per chi desidera investire nel mercato immobiliare, sia per chi desidera vivere a due passi dal centro, dalla stazione e dai principali servizi.
Disponibile un box a pochi metri dallo stabile.
Possibilità di usufruire delle detrazioni fiscali per i lavori di ristrutturazione.
Box a 55000€

Classe energetica prevista in base ad interventi simili già effettuati.
Ti interessa un immobile o vuoi avere maggiori informazioni?
Questa non è una prenotazione:
le tue disponibilità saranno confermate dal nostro staff che si occuperà di ricontattarti.
10.00 - 16.00