

In posizione centralissima, a soli 5 minuti a piedi dalla stazione e nelle immediate vicinanze di Porta Nuova, elegante trilocale situato al terzo piano di un condominio signorile servito da ascensore e servizio di portineria.
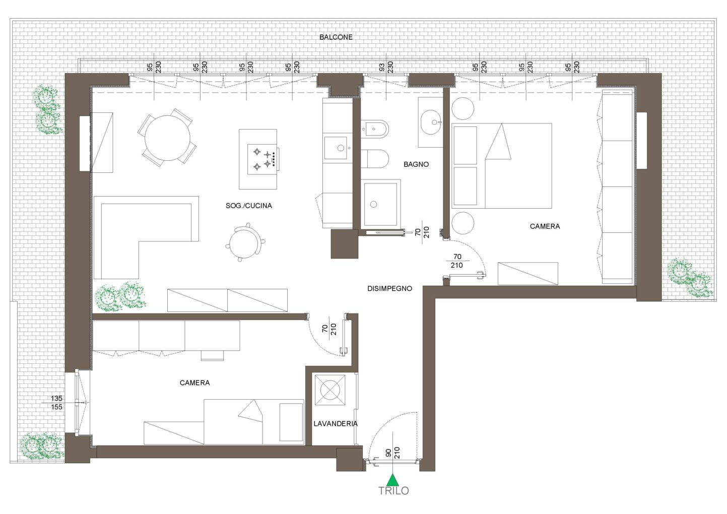
L’appartamento sarà composto da ingresso dotato abbassamenti estetici con luci a led, luminoso living dotato di cucina con isola, due ampie camere, lavanderia, disimpegno e un bagno con doccia e sanitari filomuro. Finiture di pregio.
Tutti gli ambienti si affacciano su un grande balcone che circonda l’intera superficie dell’appartamento.
Ogni dettaglio è stato studiato con cura per massimizzare lo spazio e garantire la massima personalizzazione: è infatti possibile adattare il progetto e le finiture secondo i propri gusti, creando un’abitazione su misura.
La posizione centrale e strategica rende questa soluzione ideale per chi desidera vivere la città con il massimo comfort, in un ambiente moderno, efficiente in classe energetica A.
Possibilità di box singolo a pochi metri dallo stabile.
Box a 55000€

Classe energetica prevista in base ad interventi simili già effettuati.
Scopri gli altri immobili in vendita o contattaci per maggiori informazioni.
Questa non è una prenotazione:
le tue disponibilità saranno confermate dal nostro staff che si occuperà di ricontattarti.

Solo per le offerte presentate in giornata, il prezzo passa da 465.000€ a 449.000€.
Non perdere l’occasione!
10.00 - 16.00