

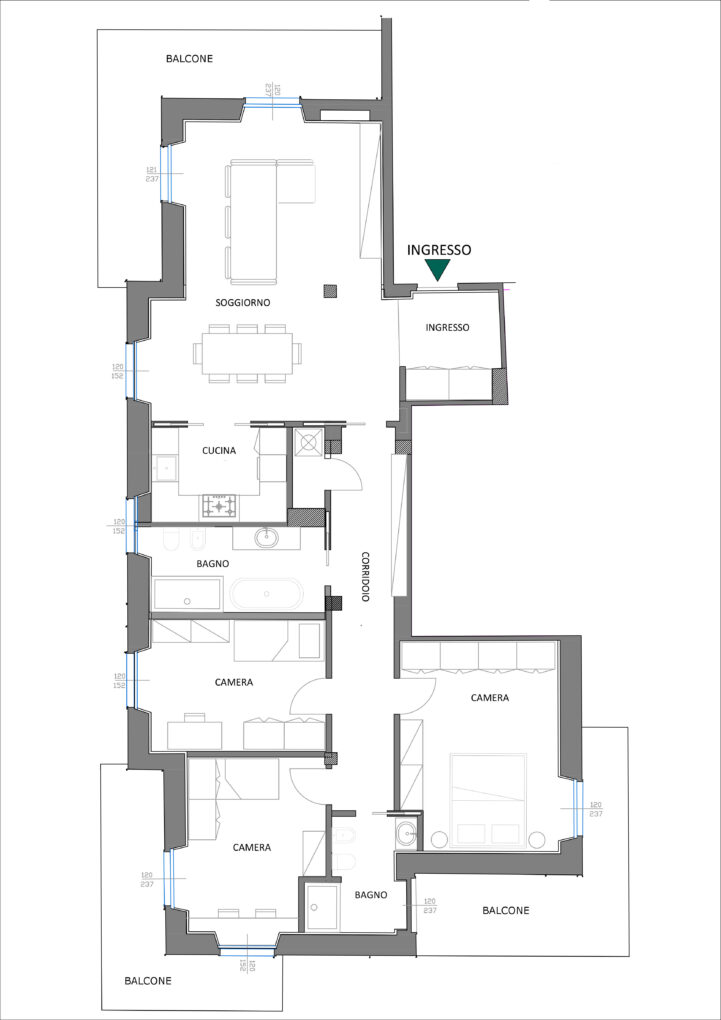
Bergamo, in una via elegante e tranquilla a pochi passi da Piazza Pontida, ampio quadrilocale al terzo piano in un palazzo signorile, servito da ascensore. L’appartamento, libero su quattro lati, vanta una generosa superficie di 150 mq e si compone di ingresso con abbassamenti estetici con luci a led, un luminoso soggiorno con due porte finestre che affacciano su uno dei balconi di generosa ampiezza, cucina separata, tre ampie camere da letto, doppi servizi finestrati di cui uno dotato di vasca a libera installazione, un lungo corridoio dove si può inserire un’armadiatura, ripostiglio/lavanderia con attacco per la lavatrice e tre balconi vivibili. Disponibile un box singolo e una cantina all’interno dello stabile.
Riscaldamento a pavimento termoautonomo.
PRONTO DA ABITARE!
Ampia cantina a 8.000€.
Possibilità di recupero fiscale.
Box a 15.000€

Classe energetica prevista in base ad interventi simili già effettuati.
Scopri gli altri immobili in vendita o contattaci per maggiori informazioni.
Questa non è una prenotazione:
le tue disponibilità saranno confermate dal nostro staff che si occuperà di ricontattarti.

Solo per le offerte presentate in giornata, il prezzo passa da 465.000€ a 449.000€.
Non perdere l’occasione!
10.00 - 16.00